Bienvenue


Contexte
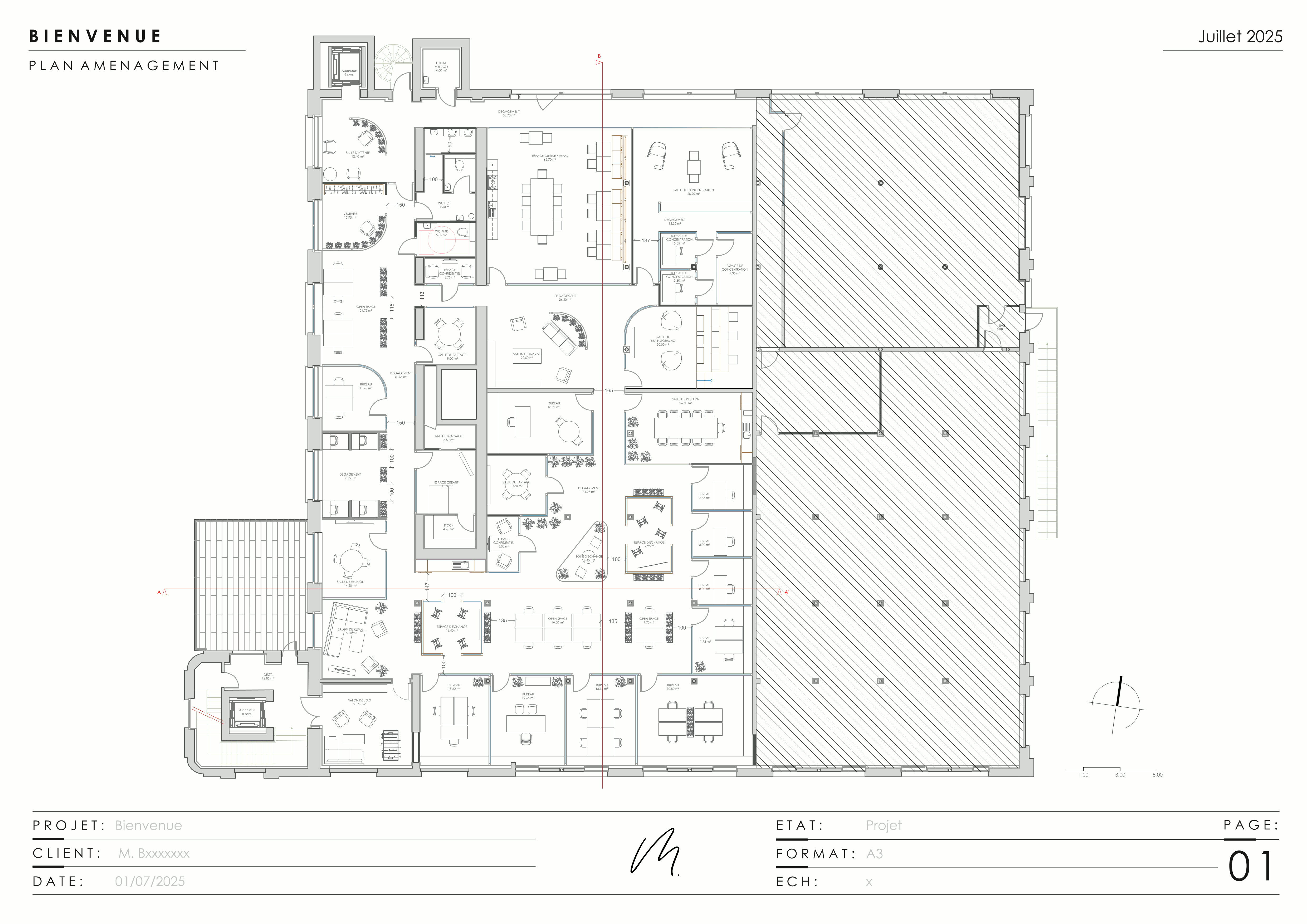
Le projet consiste à la transformation et l’optimisation d’un espace de bureaux existant situé à Colmar, afin d’en faire un lieu à la fois fonctionnel et représentatif du bien-être. Cet aménagement illustre le résultat de mes recherches développées dans mon mémoire, en mettant en avant la diversité des prestations possibles à travers un projet concret et inspirant.
Objectif
Le projet poursuit plusieurs objectifs complémentaires : - Offrir aux collaborateurs un environnement stimulant, agréable, modulable, favorisant le bien-être de chacun, - Représenter un espace vivant, illustrant plusieurs solutions d’aménagement, selon des gammes de prestations différenciées, - Mettre en œuvre une démarche flexible, centrée sur la personnalisation.
Intention
L’environnement de travail a un impact direct sur la motivation, la productivité et la santé des collaborateurs. En réponse à cette réalité, cette rénovation vise à créer un espace à la fois fonctionnel, ergonomique et chaleureux. Chaque aménagement est pensé pour favoriser la concentration, encourager les échanges et offrir des moments de respiration dans un cadre soigné.















Ce projet est à la fois un outil de travail performant et un levier de communication fort. Il démontre la conviction que l’architecture d’intérieur peut-être un vecteur de bien-être, mais aussi un outil stratégique pour les entreprises désireuses de valoriser leurs espaces au service de leur collaborateur.

