Chambre L


Contexte
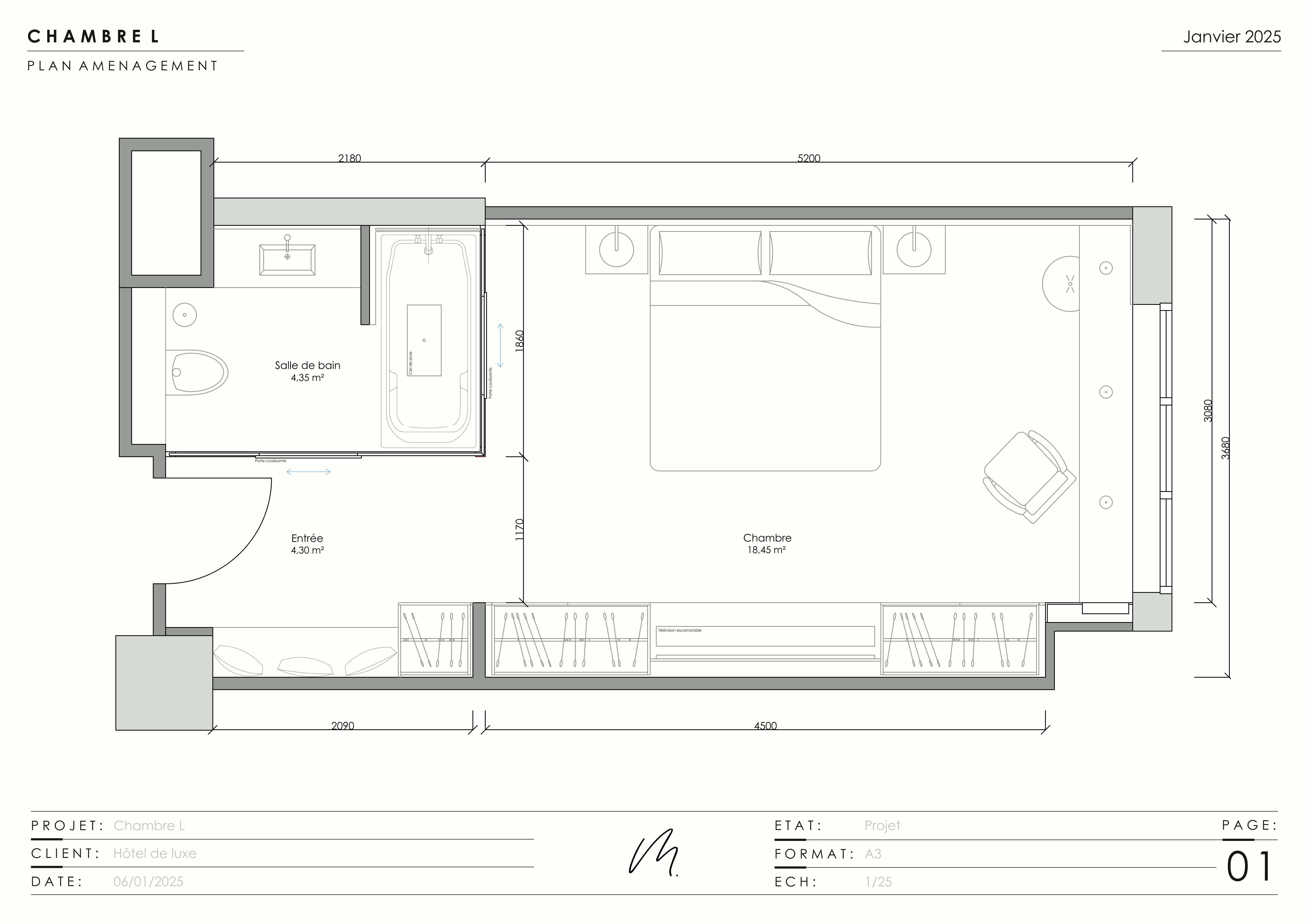
Dans ce projet, il s’agit de repenser entièrement une chambre d’hôtel haut de gamme pour en faire un lieu d’exception. Plus qu’un simple espace de nuit, la chambre devient une véritable suite contemporaine, où confort, sophistication et atmosphère immersive s’entrelacent.
Objectif
L’intervention s’appuie sur une sélection minutieuse de matériaux nobles — noyer massif, marbre veiné, cuivre brossé, lin — associés à un mobilier sur mesure et à des éléments décoratifs raffinés. L’éclairage, pensé comme un outil d’ambiance, vient rythmer l’expérience du lieu. L’intégration de la domotique ajoute une dimension moderne et intuitive, permettant d’adapter l’espace aux envies de chaque client.
Intention
L’objectif était de créer une expérience sensorielle complète : un lit enveloppant au centre de la composition, une salle de bain conçue comme un spa privé, un dressing attenant pensé pour allier praticité et élégance. Chaque détail contribue à susciter une impression d’intimité luxueuse, où le bien-être et l’exclusivité priment.








Cette rénovation exprime une vision du luxe discret et contemporain : un espace à la fois accueillant et prestigieux, où les voyageurs vivent une expérience mémorable. La chambre devient ainsi un écrin pensé pour célébrer l’art de recevoir, entre élégance intemporelle et confort absolu.

