Rénovation Appartement M


Contexte
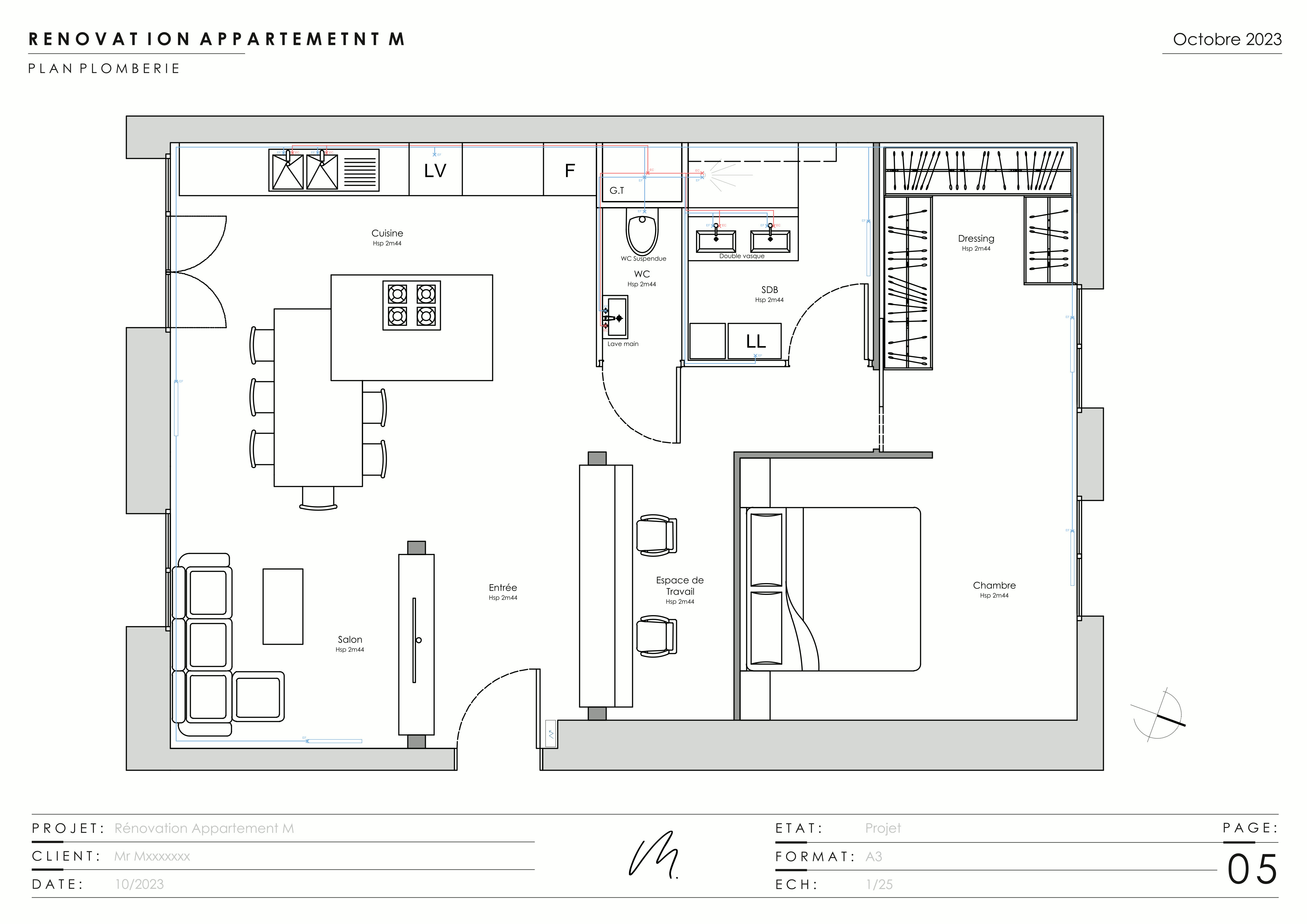
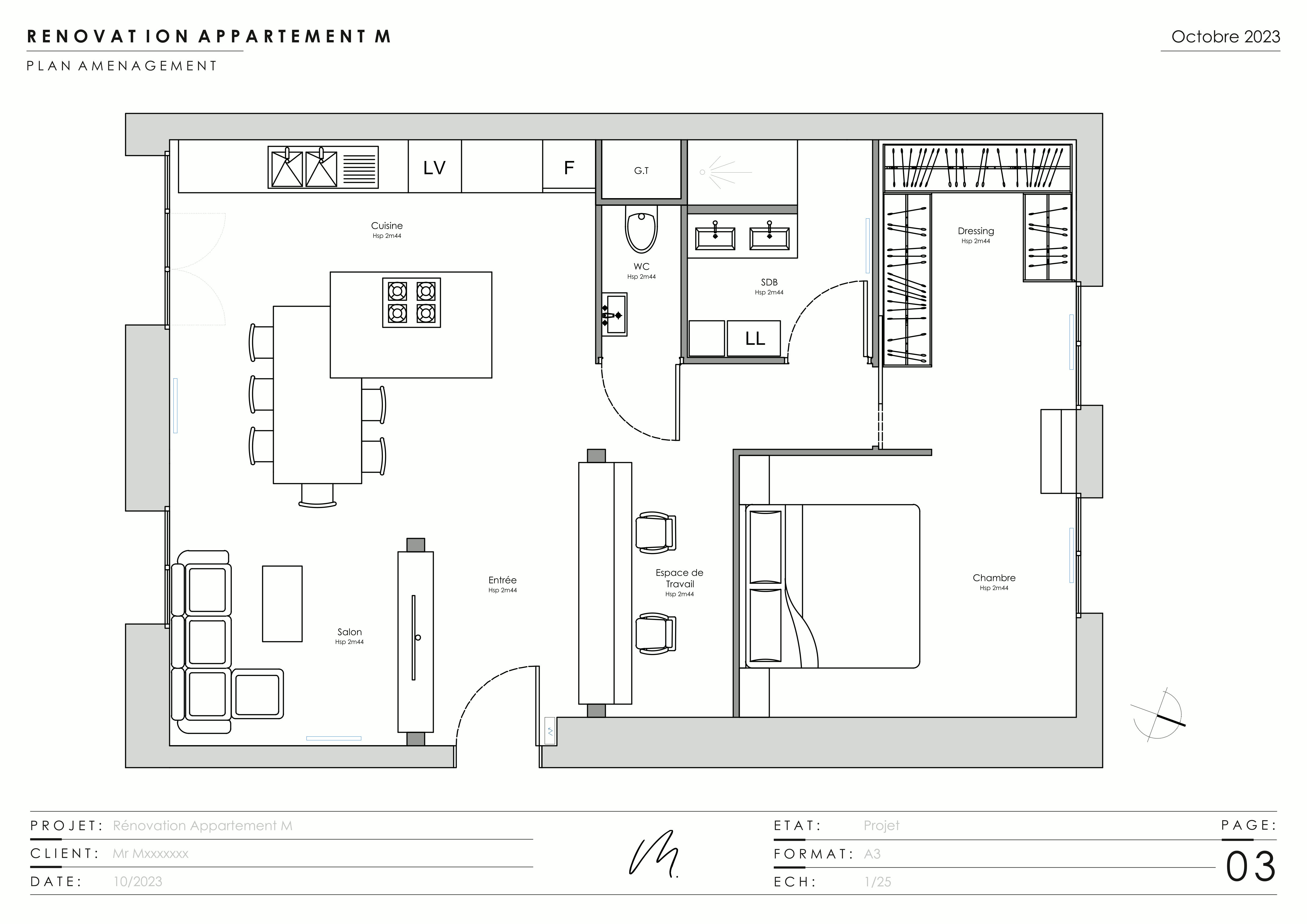
Pour ce projet, le client voulait réaménager complètement l'appartement. L’objectif principal était de créer un espace de travail distinct du reste du logement, tout en conservant une vue sur le salon. L’enjeu était de réorganiser les espaces afin d’optimiser la circulation et de révéler tout le potentiel du lieu, en mêlant confort quotidien et élégance contemporaine.
Objectif
L’appartement devait incarner une qualité de vie équilibrée : une cuisine ouverte et conviviale, un salon accueillant, une chambre intime prolongée d’un dressing. L’agencement a été conçu pour allier confort et fluidité, dans une esthétique cohérente et soignée, tout en intégrant un espace de travail distinct mais connecté à la vie du salon.
Intention
L’appartement devait incarner une qualité de vie équilibrée : une cuisine ouverte et conviviale, un salon accueillant, une chambre intime prolongée d’un dressing. L’agencement a été conçu pour allier confort et fluidité, dans une esthétique cohérente et soignée, tout en intégrant un espace de travail distinct mais connecté à la vie du salon.







Cette rénovation illustre une approche globale de l’espace intérieur : fonctionnelle et élégante à la fois. L’appartement devient un cocon raffiné où chaque détail, des bibliothèques sur mesure à l’éclairage étudié, contribue à créer une atmosphère sereine, propice au quotidien comme aux moments de partage.

